X




Woning te ZOTTEGEM (9620)

€ 438.344

Woning te Zottegem

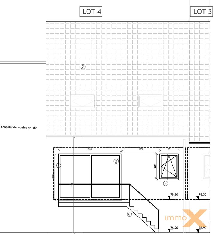
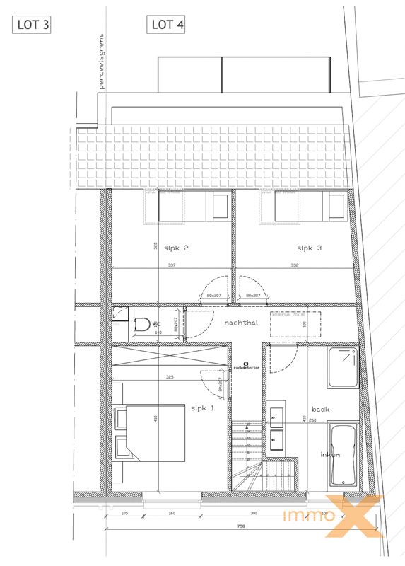
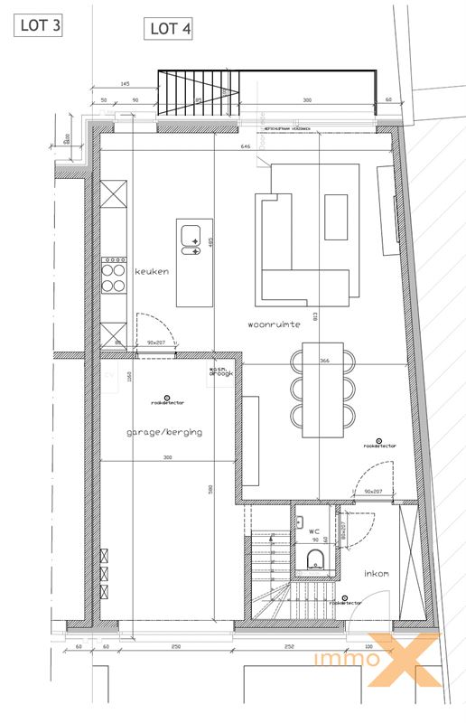
KWALITATIEF NIEUWBOUWPROJECT VAN 4 RUIME LICHTRIJKE WONINGEN MET GROTE TUIN EN GARAGE TE GROTENBERGE. Op boogscheut van centrum Zottegem: winkels - scholen - openbaar vervoer (trein en bus) in nabijheid!! Woning bestaande uit: Inkomhal/traphal, gastentoilet, garage, ruime woonkamer/salon met schuifraam naar tuin, volledig ingerichte open keuken, nachthal, afzonderlijk toilet, 3 ruime slaapkamers, volledig ingerichte badkamer (ligbad, douche, dubbel lavabomeubel), grote zolder. WONING WORDT VOLLEDIG AFGEWERKT (keuze van bepaalde materialen nog mogelijk naarmate werken vorderen - volgens lasten lastenboek). Verwarming via warmtepomp, vloerverwarming, zonnepanelen, ventilatiesysteem type D. GROTE TUIN UITKIJKEND OP ACHTERLIGGEND NATUURGEBIED!! Op zoek naar een duurzame energiezuinige kwaliteitswoning? Neem dan zeker contact op voor een persoonlijke uiteenzetting. SLEUTEL-OP-DE-DEUR AFGEWERKT. Vermelde prijs is excl. aankoop/aktekosten, BTW/registratiekosten, aansluitkosten nuts, enz.Voor meer info: Tel: 0473 71 71 70 of mail info@immo-x.be.
Aantal slaapkamers:
3
Aantal badkamers:
1
Garage:
1
Adres:
Grotenbergestraat 156, 9620 ZOTTEGEM
Bewoonbare opp.:
142 m²
Grondoppervlakte:
401 m²
Bouwjaar:
2026

Energie certificaat

EPC:
In aanvraag


Stedenbouwkundige informatie

Voorkooprecht:
Nee
Bouwvergunning verkregen:
Ja
Dagvaarding en herstelvordering:
Geen rechterlijke herstelmaatregel of bestuurlijke maatregel opgelegd
Verkavelingsvergunning:
Ja
Bestemming:
Woongebied
Erfgoed:
Nee

Comfort

Verwarming:
Warmtepomp
Type dak:
Zadeldak
Dakbedekking:
Pannen
Keuken:
Kasten met toestellen
Beglazing:
Dubbel
Raamkozijn:
pvc
Comfort binnen:
Garagepoort met afstandsbediening, Ventilatiesysteem
Comfort buiten:
Beerput + riolering (gemend systeem), Regenwaterput, Zonnepanelen

Financiële Info

€ 438.344

Meer informatie?

Laat iets van je horen via 0473 71 71 70 of stuur ons een bericht:

Uw naam ontbreekt.
Uw gsm of telefoon nummer ontbreekt.
Uw email adres ontbreekt.
Uw bericht ontbreekt.

Immo-X

Grote Baan 164, 9920 Lievegem, België

Vastgoedmakelaar - Bemiddelaar BIV 517.437 (Belgiê)
Toezichthoudende autoriteit : Beroepsinstituut van Vastgoedmakelaars (BIV)

Luxemburgstraat 16 B, 1000 Bruxelles, België

Telefoon: 02 505 38 50 of e-mailadres: info@biv.be

ON 0892-488-585 - BTW 0892-488-585 -  BA en borgstelling via Axa 730.390.160
BIV plichtenleer: https://www.biv.be/vastgoedmakelaar-biv/deontologie-van-de-vastgoedmakelaar

Openingsuren

maandag
27-04-2026
09:00 - 16:30
dinsdag
28-04-2026
09:00 - 16:30
woensdag
29-04-2026
09:00 - 16:30
donderdag
30-04-2026
09:00 - 16:30
vrijdag
01-05-2026
09:00 - 16:30
zaterdag
02-05-2026
op afspraak
zondag
03-05-2026
gesloten

In de namiddag steeds op afspraak.